Bilocale in vendita

Catanzaro, Via Zarapoti - Santa Maria
€ 28.000
2 locali 2 locali
50 Mq 50 Mq
2 bagni 2 bagni

Bilocale in vendita

Catanzaro, Via Zarapoti - Santa Maria

Descrizione annuncio

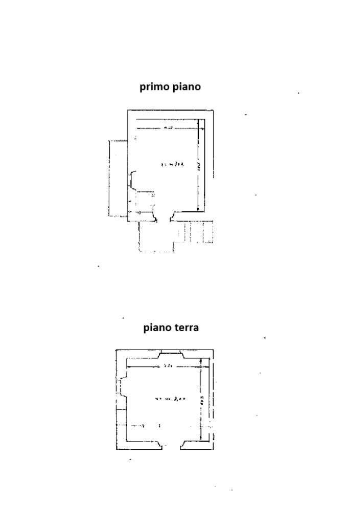
La nostra agenzia propone in vendita in una zona comoda e servita da tutti i principali servizi,un bilocale disposto su due livelli.

Al piano inferiore troviamo la zona giorno con angolo cottura e bagno; al piano superiore si sviluppa la zona notte, composta da camera da letto, secondo bagno e balcone.

Soluzione ideale per single o coppie alla ricerca di un ambiente funzionale e ben collegato.
No spese condominiali

Mostra tutto

Nelle vicinanze

Trasporto pubblico Trasporto pubblico
Santa Maria
Santa Maria
390 m
Pistoia
Pistoia
1,5 Km
Trasporto pubblico
1,7 Km
Policlinico Germaneto
Policlinico Germaneto
2,0 Km
Ricariche auto elettriche Ricariche auto elettriche
Catanzaro Palazzetto dello Sport "Stefano Gallo" | EnelX
2,8 Km
Concessionaria Fiat Bencivenni | EnelX
2,9 Km
Scuole Scuole
Istituto Comprensivo M. Preti
380 m
Istituto Professionale di Stato
1,5 Km
Scuole
1,8 Km
Scuola Elementare Sala Campagnella
2,8 Km
Farmacia Farmacia
Parafarmacia
2,9 Km
Ospedali Ospedali
Ospedali
1,9 Km
Supermercati Supermercati
Carrefour Market
1,9 Km
Conad
1,9 Km
Coop
2,2 Km
Negozi Negozi
Bimbus Catanzaro
1,8 Km
Negozi
2,9 Km
Ristoranti Ristoranti
Ristorante-pizzeria "Girasole"
2,5 Km
Arcipelago del gusto
2,8 Km
Autogrill
2,9 Km
Mostra tutto

Caratteristiche

Rif.:
61128247
Piano:
Basso
Balconi:
1
Camere da letto:
1
Arredamento:
Completo
Condizionamento:
Autonomo
Mostra tutto
Prezzo Prezzo
€ 28.000
Rata mutuo Rata mutuo
€ 130 / mese
Spese annue Spese annue
€ 0
Proponi il tuo prezzoProponi il tuo prezzo

Classe Energetica

G
G
G
G
G
G
G
G
G
EP globale non rinnovabile:
143.97 kW h/m² anno
EP globale rinnovabile:
0.35 kW h/m² anno
EP invernale del fabbricato:
EP estiva del fabbricato:
Anno di costruzione:
1990
Riscaldamento:
Autonomo
Tipo impianto:
Ad aria
Tipo alimentazione:
Altro

Ti interessa visionare l'immobile?

Fissa un appuntamento  Fissa un appuntamento

Richiedi informazioni

* Questi campi sono obbligatori

Calcola il tuo mutuo

Semplice e senza impegno
Anticipo

( % )
Mutuo

( % )

pochi semplici passi

inserisci i tuoi dati
Questionario completato
Grazie per aver richiesto un appuntamento senza impegno con un nostro Consulente del Credito e Assicurativo.

Hai inserito correttamente tutti i dati necessari e a breve riceverai una e-mail con un link da convalidare per inviare i tuoi dati.
Affiliato
Sviluppo Immobiliare Srl
Via Corace, 44 88100 Catanzaro (CZ)

Il nostro staff


  • Andrea Barbuto
    Affiliato

  • Federica Loiacono
    Coordinatrice

  • Domenico Puccio
    Responsabile

  • Fabio Massimo Petrillo
    Responsabile
Via Corace, 44 88100 Catanzaro (CZ)
Zona: Catanzaro Lido
Mostra su mappa
Orari: Lunedì - Venerdì 9:00 -13.00 / 15.30 - 19.30 Sabato 9:00- 13.00
Affiliato
Sviluppo Immobiliare Srl
Via Corace, 44 88100 Catanzaro (CZ)

2025 Tecnocasa Franchising S.p.A. - P. IVA 08365160152 - Via Monte Bianco 60/A 20089 Rozzano (MI). Ogni agenzia ha un proprio titolare ed è autonoma. Privacy policy | Policy utilizzo | Cookie policy