Quadrilocale in vendita

Catanzaro, Viale Crotone Trav VIII - Catanzaro Lido
€ 210.000
4 locali 4 locali
120 Mq 120 Mq
2 bagni 2 bagni

Quadrilocale in vendita

Catanzaro, Viale Crotone Trav VIII - Catanzaro Lido

Descrizione annuncio

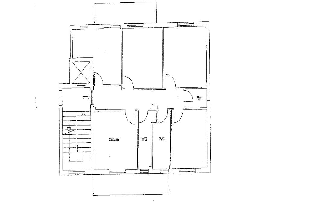
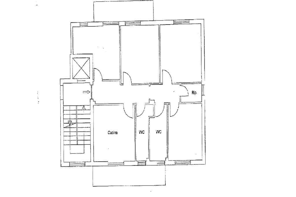
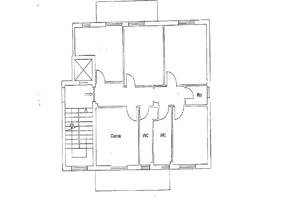
Catanzaro lido;Viale crotone: proponiamo in vendita un ampio e comodo appartamento situato al primo piano di uno stabile ben tenuto,in posizione tranquilla ma al tempo stesso vicina a tutti i principali servizi.

L’abitazione si distingue per la sua ottima distribuzione degli spazi interni, ideale per chi desidera vivere ambienti spaziosi e luminosi.
L’ingresso troviamo disimpegno che conduce alla cucina abitabile, dotata di balcone con leggera vista mare, perfetto per godersi momenti di relax all’aperto.

Attualmente ha quattro camere da letto , di cui una servita da balcone privato,
Completano la proprietà due bagni finestrati, entrambi funzionali e ben rifiniti: uno dotato di doccia, l’altro di vasca da bagno,un pratico ripostiglio, ideale per organizzare al meglio gli spazi della casa.
L’appartamento è termoautonomo e dispone di impianto di climatizzazione

La posizione, la vista mare e la funzionalità degli ambienti rendono questa soluzione un’ottima opportunità sia come abitazione principale che ad uso investimento in quanto è locata a quattro studenti.

Posto auto riservato e recintato.

Mostra tutto

Nelle vicinanze

Trasporto pubblico Trasporto pubblico
Catanzaro Lido
Catanzaro Lido
70 m
Aranceto
Aranceto
2,0 Km
Stazione FS Catanzaro Lido
Stazione FS Catanzaro Lido
110 m
Trasporto pubblico
210 m
Ricariche auto elettriche Ricariche auto elettriche
Stazione Catanzaro Lido | EnelX
120 m
Catanzaro Lido Nicea | EnelX
260 m
Catanzaro Lido Lungomare | EnelX
370 m
Catanzaro Lungomare Siracusa | EnelX
780 m
PENNY Market Catanzaro | EnelX
930 m
Scuole Scuole
Scuole
460 m
Farmacia Farmacia
Distefano
160 m
Supermercati Supermercati
MD Market
530 m
Da bimbo a bimbo
790 m
Penny
930 m
Coop
1,0 Km
Lidl
1,0 Km
Negozi Negozi
My Wear
130 m
Ad maiora 5
160 m
Panificio Sacco
170 m
1st Panetteria
180 m
Cosi Come Sei
300 m
Bar Bar
Bar Centrale
60 m
Marina Cafè
110 m
Marrons Glaces
160 m
Caffè Letterario Don Chisciotte
170 m
Cremino
180 m
Ristoranti Ristoranti
Osteria Del Mare Da Giuseppe
170 m
L'angolo di Vino
190 m
ZenZero
200 m
Antica Trattoria Carmelina
690 m
Le Voglie Spaghetteria
810 m
Mostra tutto

Caratteristiche

Rif.:
61132165
Piano:
1 di 3 con ascensore (Piano medio)
Posti auto:
1
Balconi:
2
Camere da letto:
3
Arredamento:
Completo
Mostra tutto
Prezzo Prezzo
€ 210.000
Rata mutuo Rata mutuo
€ 990 / mese
Spese annue Spese annue
€ 0
Proponi il tuo prezzoProponi il tuo prezzo

Classe Energetica

G
G
G
G
G
G
G
G
G
EP globale non rinnovabile:
173.50 kW h/m² anno
EP globale rinnovabile:
104.30 kW h/m² anno
EP invernale del fabbricato:
EP estiva del fabbricato:
Anno di costruzione:
1990
Riscaldamento:
Autonomo
Tipo impianto:
A radiatori
Tipo alimentazione:
Altro

Ti interessa visionare l'immobile?

Fissa un appuntamento  Fissa un appuntamento

Richiedi informazioni

Clicca su Leggi per aprire l'informativa
* Questi campi sono obbligatori

Calcola il tuo mutuo

Semplice e senza impegno
Anticipo

( % )
Mutuo

( % )

pochi semplici passi

inserisci i tuoi dati
Questionario completato
Grazie per aver richiesto un appuntamento senza impegno con un nostro Consulente del Credito e Assicurativo.

Hai inserito correttamente tutti i dati necessari e a breve riceverai una e-mail con un link da convalidare per inviare i tuoi dati.
Affiliato
Sviluppo Immobiliare Srl
Via Corace, 44 88100 Catanzaro (CZ)

Il nostro staff


  • Andrea Barbuto
    Affiliato

  • Federica Loiacono
    Coordinatrice

  • Domenico Puccio
    Responsabile

  • Fabio Massimo Petrillo
    Responsabile
Via Corace, 44 88100 Catanzaro (CZ)
Zona: Catanzaro Lido
Mostra su mappa
Orari: Lunedì - Venerdì 9:00 -13.00 / 15.30 - 19.30 Sabato 9:00- 13.00
Affiliato
Sviluppo Immobiliare Srl
Via Corace, 44 88100 Catanzaro (CZ)

2026 Tecnocasa Franchising S.p.A. - P. IVA 08365160152 - Via Monte Bianco 60/A 20089 Rozzano (MI). Ogni agenzia ha un proprio titolare ed è autonoma. Privacy policy | Policy utilizzo | Cookie policy