Quadrilocale in vendita

Catanzaro, Viale Magna Grecia - Catanzaro Lido
€ 148.000
3 locali 3 locali
110 Mq 110 Mq
2 bagni 2 bagni

Quadrilocale in vendita

Catanzaro, Viale Magna Grecia - Catanzaro Lido

Descrizione annuncio

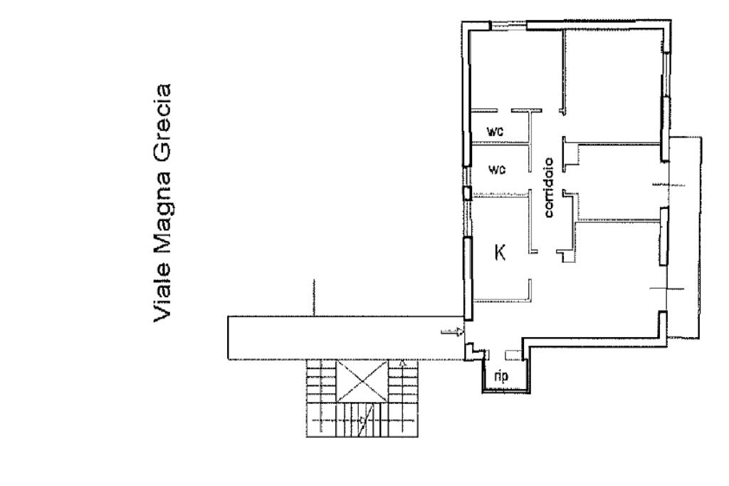
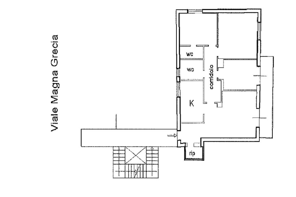
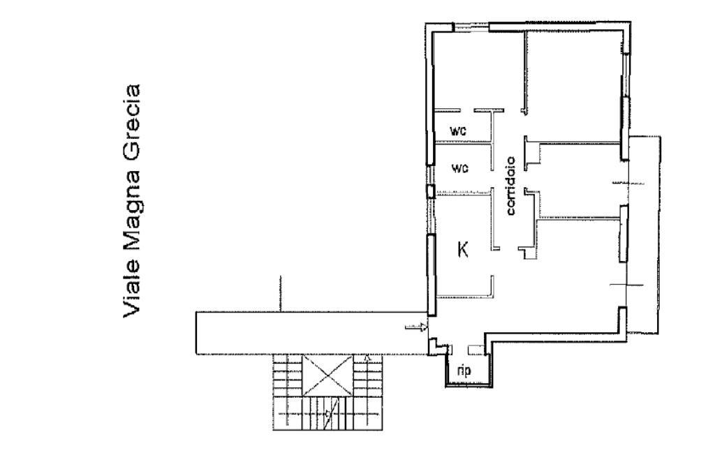
In Viale Magna Grecia, in posizione strategica e ottimamente collegata alle principali arterie stradali, proponiamo in vendita un ampio e luminoso appartamento di circa 110 mq, posto al terzo piano di uno stabile servito da ascensore.

L’immobile, in ottime condizioni interne, si apre su un comodo ingresso che conduce al soggiorno con balcone verandato, ideale come zona relax. La cucina è abitabile, ben organizzata e funzionale. La zona notte comprende tre camere da letto, doppi servizi e un pratico ripostiglio.

La razionale distribuzione degli spazi rende la soluzione ideale per famiglie, pronta per essere abitata senza necessità di interventi.Completa la proprietà:

Riscaldamento autonomo

Climatizzatori

Infissi e doppi infissi con vetrocamera

Un’abitazione confortevole, luminosa e ben collegata, perfetta per chi cerca spazio e funzionalità in un contesto urbano servito.

Mostra tutto

Nelle vicinanze

Trasporto pubblico Trasporto pubblico
Santa Maria
Santa Maria
340 m
Pistoia
Pistoia
1,2 Km
Trasporto pubblico
1,3 Km
Policlinico Germaneto
Policlinico Germaneto
2,5 Km
Ricariche auto elettriche Ricariche auto elettriche
Catanzaro Palazzetto dello Sport "Stefano Gallo" | EnelX
2,6 Km
Scuole Scuole
Istituto Comprensivo M. Preti
210 m
Istituto Professionale di Stato
1,6 Km
Scuole
2,4 Km
Scuola Elementare Sala Campagnella
3,0 Km
Ospedali Ospedali
Ospedali
2,4 Km
Supermercati Supermercati
Conad
2,1 Km
Carrefour Market
2,1 Km
Coop
2,4 Km
Negozi Negozi
Bimbus Catanzaro
2,1 Km
Ristoranti Ristoranti
Ristorante-pizzeria "Girasole"
2,8 Km
Mostra tutto

Caratteristiche

Rif.:
61166036
Piano:
3 di 3 con ascensore (Piano alto)
Terrazzi:
1
Camere da letto:
3
Arredamento:
Parziale
Condizionamento:
Autonomo
Mostra tutto
Prezzo Prezzo
€ 148.000
Rata mutuo Rata mutuo
€ 702 / mese
Spese annue Spese annue
€ 0
Proponi il tuo prezzoProponi il tuo prezzo

Classe Energetica

G
G
G
G
G
G
G
G
G
EP globale non rinnovabile:
173.50 kW h/m² anno
EP globale rinnovabile:
104.30 kW h/m² anno
EP invernale del fabbricato:
EP estiva del fabbricato:
Anno di costruzione:
1980
Riscaldamento:
Autonomo
Tipo impianto:
Ad aria
Tipo alimentazione:
Altro

Ti interessa visionare l'immobile?

Fissa un appuntamento  Fissa un appuntamento

Richiedi informazioni

Clicca su Leggi per aprire l'informativa
* Questi campi sono obbligatori

Calcola il tuo mutuo

Semplice e senza impegno
Anticipo

( % )
Mutuo

( % )

pochi semplici passi

inserisci i tuoi dati
Questionario completato
Grazie per aver richiesto un appuntamento senza impegno con un nostro Consulente del Credito e Assicurativo.

Hai inserito correttamente tutti i dati necessari e a breve riceverai una e-mail con un link da convalidare per inviare i tuoi dati.
Affiliato
Sviluppo Immobiliare Sas
Via Corace, 44 88100 Catanzaro (CZ)

Il nostro staff


  • Andrea Barbuto
    Affiliato

  • Federica Loiacono
    Coordinatrice

  • Domenico Puccio
    Responsabile

  • Fabio Massimo Petrillo
    Responsabile
Via Corace, 44 88100 Catanzaro (CZ)
Zona: Catanzaro Lido
Mostra su mappa
Orari: Lunedì - Venerdì 9:00 -13.00 / 15.30 - 19.30 Sabato 9:00- 13.00
Affiliato
Sviluppo Immobiliare Sas
Via Corace, 44 88100 Catanzaro (CZ)

2026 Tecnocasa Franchising S.p.A. - P. IVA 08365160152 - Via Monte Bianco 60/A 20089 Rozzano (MI). Ogni agenzia ha un proprio titolare ed è autonoma. Privacy policy | Policy utilizzo | Cookie policy