Quadrilocale in vendita

Catanzaro, Via Gregorio Marra - Catanzaro Lido
€ 93.000
4 locali 4 locali
124 Mq 124 Mq
1 bagno 1 bagno

Quadrilocale in vendita

Catanzaro, Via Gregorio Marra - Catanzaro Lido

Descrizione annuncio

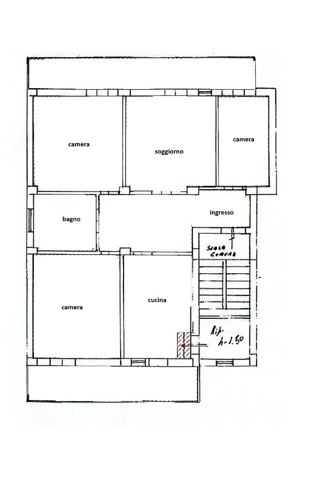
Proponiamo in vendita, nella tranquilla località di Roccelletta di Borgia, appartamento di circa 125 mq, posto al secondo piano rialzato.

L’immobile si presenta con ambienti comodi e ben distribuiti ed è composto da:
ingresso, cucina abitabile, soggiorno, tre camere da letto tutte con accesso diretto ai balconi e bagno.

L'esposizione su tre lati garantisce luminosità rendendo l’appartamento ideale per famiglie o per chi desidera spazi generosi.

No condominio.

Per maggiori informazioni o per fissare un appuntamento, non esitare a contattarci.

Mostra tutto

Nelle vicinanze

Trasporto pubblico Trasporto pubblico
Catanzaro Lido
Catanzaro Lido
1,6 Km
Trasporto pubblico
1,4 Km
Stazione FS Catanzaro Lido
Stazione FS Catanzaro Lido
1,6 Km
Ricariche auto elettriche Ricariche auto elettriche
Catanzaro Lido Lungomare | EnelX
1,3 Km
Stazione Catanzaro Lido | EnelX
1,6 Km
Catanzaro Lido Nicea | EnelX
1,8 Km
PENNY Market Catanzaro | EnelX
2,1 Km
Catanzaro Lungomare Siracusa | EnelX
2,3 Km
Scuole Scuole
Scuole
1,1 Km
Farmacia Farmacia
Distefano
1,5 Km
Supermercati Supermercati
MD Market
1,2 Km
Da bimbo a bimbo
1,9 Km
Penny
2,1 Km
Lidl
2,2 Km
Coop
2,6 Km
Negozi Negozi
Cosi Come Sei
1,3 Km
1st Panetteria
1,4 Km
Panificio Sacco
1,4 Km
Ad maiora 5
1,5 Km
My Wear
1,5 Km
Bar Bar
Marina Cafè
1,5 Km
Bar Centrale
1,5 Km
Cremino
1,5 Km
Marrons Glaces
1,6 Km
Caffè Letterario Don Chisciotte
1,7 Km
Ristoranti Ristoranti
Ristoranti
940 m
Osteria Del Mare Da Giuseppe
1,4 Km
L'angolo di Vino
1,7 Km
ZenZero
1,7 Km
Antica Trattoria Carmelina
2,3 Km
Mostra tutto

Caratteristiche

Rif.:
61185227
Piano:
2 di 3 (Piano alto)
Balconi:
2
Camere da letto:
3
Arredamento:
Completo
Condizionamento:
Autonomo
Mostra tutto
Prezzo Prezzo
€ 93.000
Rata mutuo Rata mutuo
€ 441 / mese
Spese annue Spese annue
€ 0
Proponi il tuo prezzoProponi il tuo prezzo

Classe Energetica

F
F
F
F
F
F
F
F
F
EP globale non rinnovabile:
173.50 kW h/m² anno
EP globale rinnovabile:
104.30 kW h/m² anno
Anno di costruzione:
1980
Riscaldamento:
Autonomo
Tipo impianto:
Ad aria
Tipo alimentazione:
Altro

Ti interessa visionare l'immobile?

Fissa un appuntamento  Fissa un appuntamento

Richiedi informazioni

Clicca su Leggi per aprire l'informativa
* Questi campi sono obbligatori

Calcola il tuo mutuo

Semplice e senza impegno
Anticipo

( % )
Mutuo

( % )

pochi semplici passi

inserisci i tuoi dati
Questionario completato
Grazie per aver richiesto un appuntamento senza impegno con un nostro Consulente del Credito e Assicurativo.

Hai inserito correttamente tutti i dati necessari e a breve riceverai una e-mail con un link da convalidare per inviare i tuoi dati.
Affiliato
Sviluppo Immobiliare Sas
Via Corace, 44 88100 Catanzaro (CZ)

Il nostro staff


  • Andrea Barbuto
    Affiliato

  • Federica Loiacono
    Coordinatrice

  • Domenico Puccio
    Responsabile

  • Fabio Massimo Petrillo
    Responsabile
Via Corace, 44 88100 Catanzaro (CZ)
Zona: Catanzaro Lido
Mostra su mappa
Orari: Lunedì - Venerdì 9:00 -13.00 / 15.30 - 19.30 Sabato 9:00- 13.00
Affiliato
Sviluppo Immobiliare Sas
Via Corace, 44 88100 Catanzaro (CZ)

2026 Tecnocasa Franchising S.p.A. - P. IVA 08365160152 - Via Monte Bianco 60/A 20089 Rozzano (MI). Ogni agenzia ha un proprio titolare ed è autonoma. Privacy policy | Policy utilizzo | Cookie policy