Box / posti auto in vendita

Catanzaro, Via Lorenzo Anania - Catanzaro Lido
€ 150.000
Prezzo aggiornato
2 locali 2 locali
215 Mq 215 Mq
1 bagno 1 bagno

Box / posti auto in vendita

Catanzaro, Via Lorenzo Anania - Catanzaro Lido

Descrizione annuncio

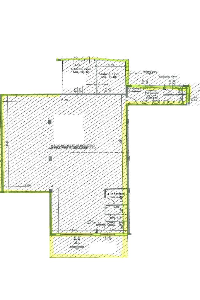
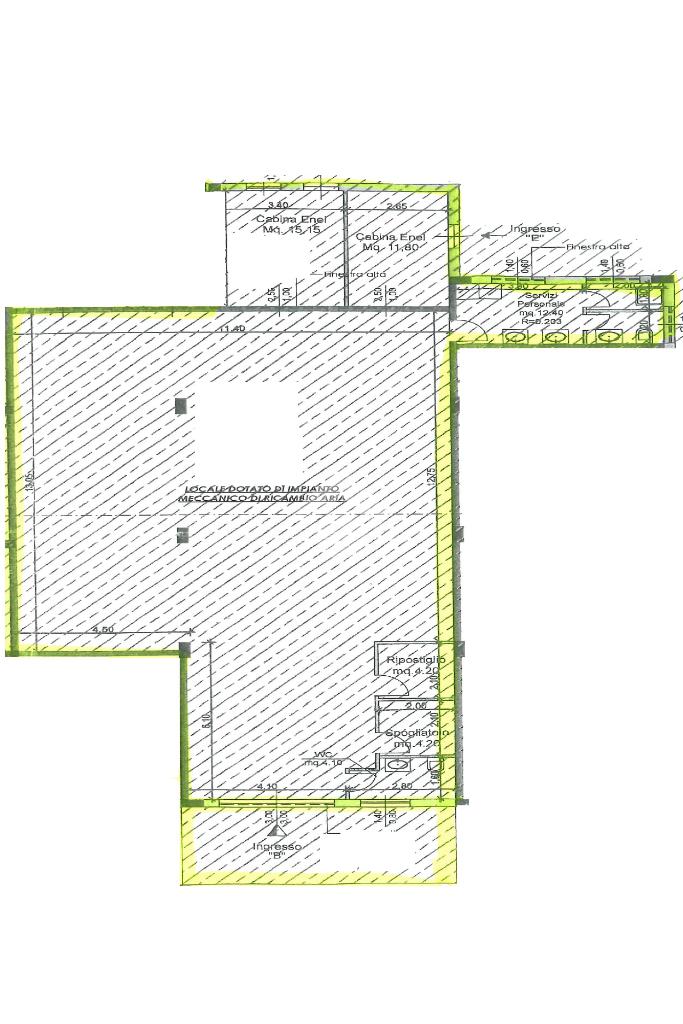
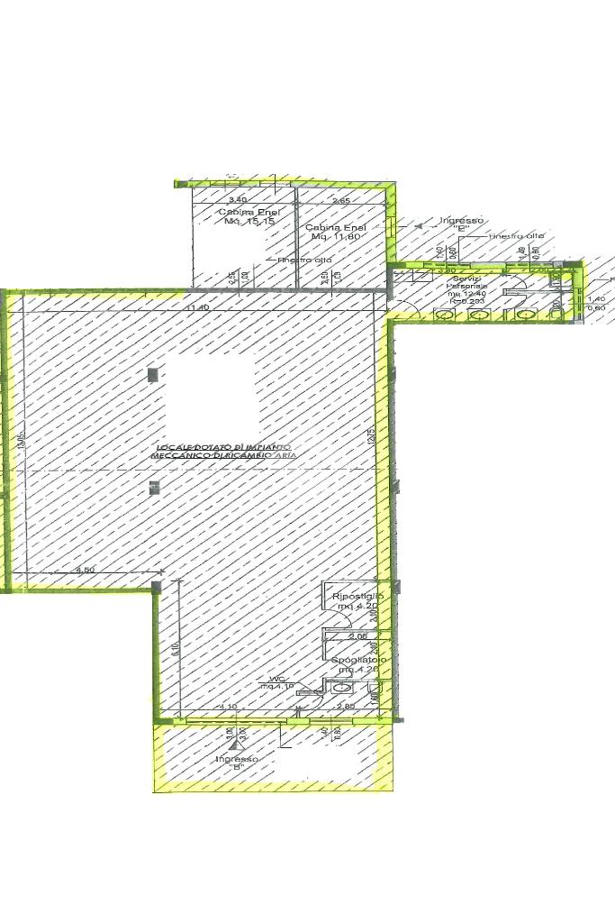
In una posizione strategica e in continua espansione a Giovino, proponiamo in vendita un ampio locale di circa 215 mq con altezza interna di 5,10 metri, attualmente accatastato in categoria C/2 (magazzino/deposito).

Grazie alla sua metratura, all’altezza significativa e alla struttura regolare, l’immobile si presta a molteplici trasformazioni:

Cambio di destinazione d’uso in C/1 per realizzare un locale commerciale (negozio, showroom, attività di servizi);

Possibilità di frazionamento in più unità abitative, con conversione in categoria A/3 per la creazione di appartamenti residenziali, ideali per investimento, messa a reddito o vendita frazionata.

Punti di forza:

Ottima visibilità e accessibilità

Zona in forte sviluppo urbanistico e commerciale

Soluzione ideale per imprese, investitori o professionisti del settore edilizio

Un'opportunità rara per chi cerca uno spazio flessibile e trasformabile in una delle zone più interessanti del litorale catanzarese.

Per maggiori informazioni o per una visita in loco, non esitare a contattarci.

Mostra tutto

Nelle vicinanze

Trasporto pubblico Trasporto pubblico
Aranceto
Aranceto
2,9 Km
Trasporto pubblico
870 m
Ricariche auto elettriche Ricariche auto elettriche
Catanzaro Pisacane | EnelX
530 m
Parco Commerciale Le Fontane | EnelX
810 m
Catanzaro Lido Area Parcheggio | EnelX
1,1 Km
Catanzaro Lido ex Area Teti | EnelX
1,6 Km
Catanzaro Lungomare Siracusa | EnelX
2,4 Km
Scuole Scuole
Scuole
2,3 Km
Supermercati Supermercati
Ipercoop
920 m
Crai
1,8 Km
Coop
2,2 Km
Negozi Negozi
Upim
390 m
Il pane scida
2,3 Km
Ristoranti Ristoranti
Fratelli La Bufala
960 m
Officina del pesce
1,2 Km
Trattoria del pesce
1,4 Km
Le Voglie Spaghetteria
2,4 Km
Antica Trattoria Carmelina
2,5 Km
Mostra tutto

Caratteristiche

Rif.:
61127259
Piano:
1 (Piano basso)
Arredamento:
Assente
Condizionamento:
Assente
Ascensore:
No
Riscaldamento:
Autonomo
Mostra tutto
Prezzo Prezzo
€ 150.000
Rata mutuo Rata mutuo
€ 707 / mese
Spese annue Spese annue
€ 480
Proponi il tuo prezzoProponi il tuo prezzo

Classe Energetica

G
G
G
G
G
G
G
G
G
EP globale non rinnovabile:
173.50 kW h/m² anno
EP globale rinnovabile:
104.30 kW h/m² anno
EP invernale del fabbricato:
EP estiva del fabbricato:
Anno di costruzione:
2000
Riscaldamento:
Autonomo
Tipo impianto:
Ad aria
Tipo alimentazione:
Altro

Prezzo ridotto di €1 (10%%)

Ti interessa visionare l'immobile?

Fissa un appuntamento  Fissa un appuntamento

Richiedi informazioni

Clicca su Leggi per aprire l'informativa
* Questi campi sono obbligatori

Calcola il tuo mutuo

Semplice e senza impegno
Anticipo

( % )
Mutuo

( % )

pochi semplici passi

inserisci i tuoi dati
Questionario completato
Grazie per aver richiesto un appuntamento senza impegno con un nostro Consulente del Credito e Assicurativo.

Hai inserito correttamente tutti i dati necessari e a breve riceverai una e-mail con un link da convalidare per inviare i tuoi dati.
Affiliato
Sviluppo Immobiliare Srl
Via Corace, 44 88100 Catanzaro (CZ)

Il nostro staff


  • Andrea Barbuto
    Affiliato

  • Federica Loiacono
    Coordinatrice

  • Domenico Puccio
    Responsabile

  • Fabio Massimo Petrillo
    Responsabile
Via Corace, 44 88100 Catanzaro (CZ)
Zona: Catanzaro Lido
Mostra su mappa
Orari: Lunedì - Venerdì 9:00 -13.00 / 15.30 - 19.30 Sabato 9:00- 13.00
Affiliato
Sviluppo Immobiliare Srl
Via Corace, 44 88100 Catanzaro (CZ)

2026 Tecnocasa Franchising S.p.A. - P. IVA 08365160152 - Via Monte Bianco 60/A 20089 Rozzano (MI). Ogni agenzia ha un proprio titolare ed è autonoma. Privacy policy | Policy utilizzo | Cookie policy