Villa a schiera in affitto

Catanzaro, Viale crotone trav IV - Catanzaro Lido
€ 290 / mese
3 locali 3 locali
120 Mq 120 Mq
2 bagni 2 bagni

Villa a schiera in affitto

Catanzaro, Viale crotone trav IV - Catanzaro Lido

Descrizione annuncio

Catanzaro Lido: Viale Crotone.

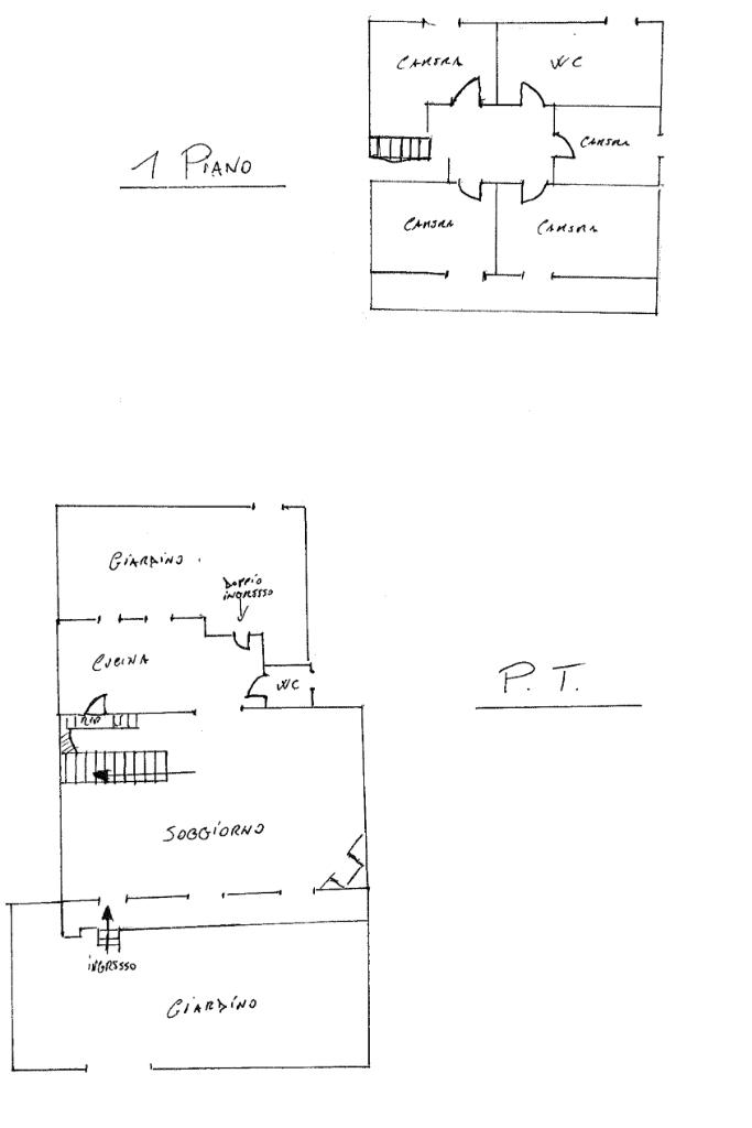
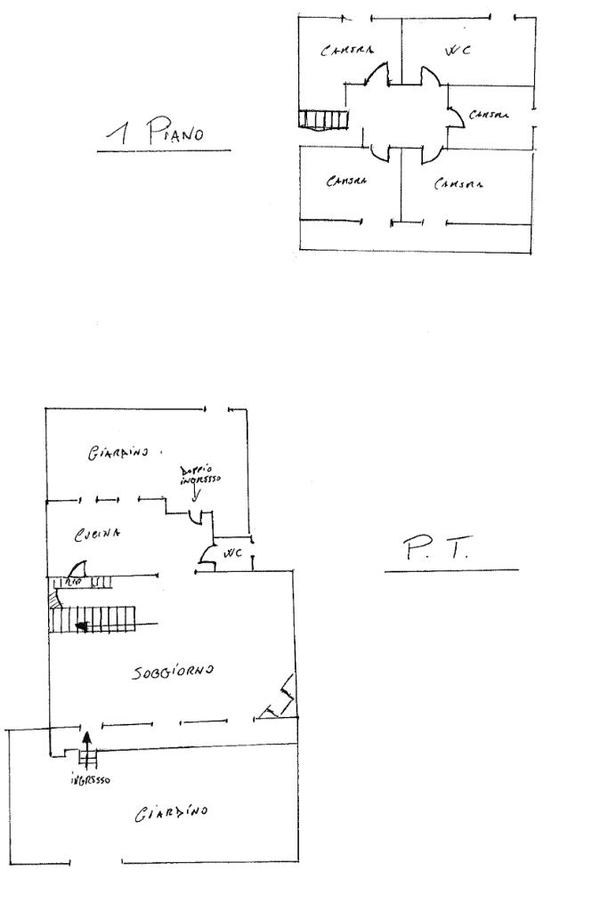
Proponiamo in locazione una villetta a schiera disposta su due livelli, con giardino sia sul fronte che sul retro.

Al piano terra è composta da ampio soggiorno, cucina abitabile, bagno e un balcone.

Al primo piano la zona notte è composta da tre camere da letto, due delle quali con accesso al balcone, e un secondo bagno.

Il prezzo si riferisce ad una singola stanza.

Contattaci per ulteriori informazioni!

Mostra tutto

Nelle vicinanze

Trasporto pubblico Trasporto pubblico
Aranceto
Aranceto
2,0 Km
Catanzaro Lido
Catanzaro Lido
2,1 Km
Trasporto pubblico
1,7 Km
Stazione FS Catanzaro Lido
Stazione FS Catanzaro Lido
2,2 Km
Ricariche auto elettriche Ricariche auto elettriche
Catanzaro Lido Area Parcheggio | EnelX
660 m
Catanzaro Lido ex Area Teti | EnelX
690 m
Catanzaro Pisacane | EnelX
710 m
Catanzaro Lungomare Siracusa | EnelX
1,5 Km
Parco Commerciale Le Fontane | EnelX
1,6 Km
Scuole Scuole
Scuole
1,3 Km
Farmacia Farmacia
Distefano
2,3 Km
Supermercati Supermercati
Crai
880 m
Coop
1,2 Km
Ipercoop
1,6 Km
Lidl
2,0 Km
Penny
2,1 Km
Negozi Negozi
Upim
1,0 Km
Il pane scida
1,3 Km
My Wear
2,3 Km
Ad maiora 5
2,3 Km
Panificio Sacco
2,4 Km
Bar Bar
Caffè Letterario Don Chisciotte
2,1 Km
Marrons Glaces
2,2 Km
Bar Centrale
2,3 Km
Cremino
2,3 Km
Marina Cafè
2,3 Km
Ristoranti Ristoranti
Officina del pesce
560 m
Trattoria del pesce
690 m
Le Voglie Spaghetteria
1,4 Km
Antica Trattoria Carmelina
1,5 Km
Fratelli La Bufala
1,7 Km
Mostra tutto

Caratteristiche

Rif.:
61115375
Piano:
Basso
Posti auto:
2
Balconi:
2
Camere da letto:
3
Arredamento:
Parziale
Mostra tutto
Prezzo Prezzo
€ 290 / mese
Spese annue Spese annue
€ 0

Classe Energetica

G
G
G
G
G
G
G
G
G
EP globale non rinnovabile:
173.50 kW h/m² anno
EP globale rinnovabile:
104.30 kW h/m² anno
EP invernale del fabbricato:
EP estiva del fabbricato:
Anno di costruzione:
1987
Riscaldamento:
Autonomo
Tipo impianto:
A stufa
Tipo alimentazione:
Altro

Ti interessa visionare l'immobile?

Fissa un appuntamento  Fissa un appuntamento

Richiedi informazioni

Clicca su Leggi per aprire l'informativa
* Questi campi sono obbligatori
Affiliato
Sviluppo Immobiliare Srl
Via Corace, 44 88100 Catanzaro (CZ)

Il nostro staff


  • Andrea Barbuto
    Affiliato

  • Federica Loiacono
    Coordinatrice

  • Domenico Puccio
    Responsabile

  • Fabio Massimo Petrillo
    Responsabile
Via Corace, 44 88100 Catanzaro (CZ)
Zona: Catanzaro Lido
Mostra su mappa
Orari: Lunedì - Venerdì 9:00 -13.00 / 15.30 - 19.30 Sabato 9:00- 13.00
Affiliato
Sviluppo Immobiliare Srl
Via Corace, 44 88100 Catanzaro (CZ)

2026 Tecnocasa Franchising S.p.A. - P. IVA 08365160152 - Via Monte Bianco 60/A 20089 Rozzano (MI). Ogni agenzia ha un proprio titolare ed è autonoma. Privacy policy | Policy utilizzo | Cookie policy